- Price 599,900
- Mixed Use For Sale
- MLS A2262744
- 1,992
Description
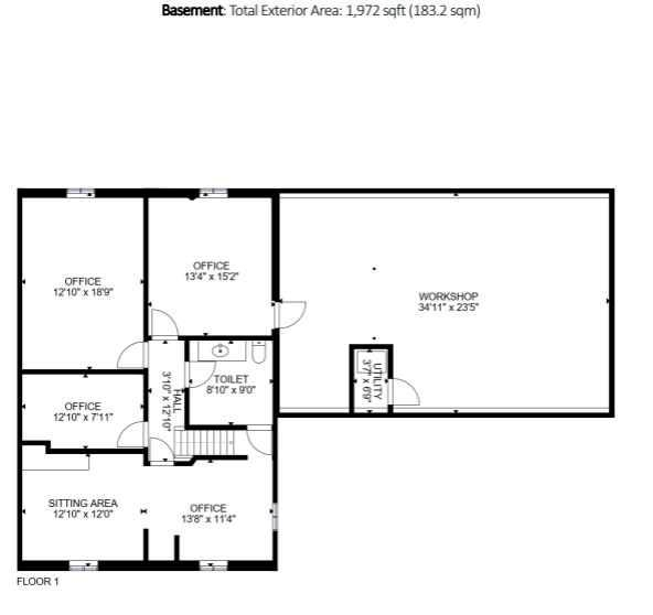
Great opportunity to own this strategically located turn key office space on the edge of downtown, with close proximity to Red Deer city hall and the new courthouse. Currently being occupied as a law office, this C1 zoned commercial property (50X130FT LOT) is ideal for any number of business opportunities. Up to 11 offices with open reception area. Parking in the rear and off street (up to 11 stalls). Wheel chair accessible. A great opportunity at an affordable price. Relatively quick possession is available.
Details
- TransactionFor Sale
- NeighbourhoodDowntown Red Deer
- Commercial TypeMixed Use
- Building Size1,992 sqft
- FoundationPoured Concrete
- Air ConditioningCentral Air
- HeatingForced Air, Natural Gas
- InclusionsFRIDGE, RECEPTION DESK
- WaterElectricity Connected, Natural Gas Connected, Sewer Connected, Water Connected
- SewerPublic Sewer
- ZoningC-1
- Year Built1956
Listing Agent
- Brad Granlund - RCR - Royal Carpet Realty Ltd. 403-342-7700
All information displayed is believed to be accurate but is not guaranteed by Central Alberta REALTORS® Association and should be independently verified. No warranties or representations of any kind are made.











































