- Lease 8.00 / sqft
- Industrial For Lease
- MLS A2216425
- 11,206
Description
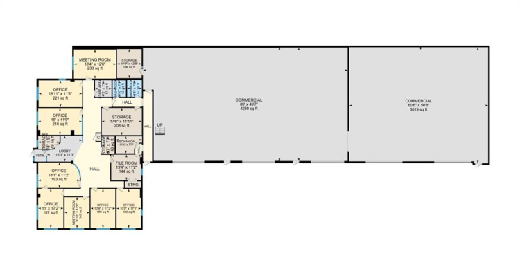
Located in Riverside Light Industrial Park, this space offers 11,206 SF with a reception area/lobby, six offices (some with windows), two meeting rooms/boardrooms, a file room, multiple storage rooms, and two washrooms. The large shop has 20′ ceilings and is separated into two areas with (5) 14′ overhead doors. The yard is fenced and graveled with paved parking available directly in front. Additional Rent is $4.06 for the 2025 budget year.
Details
- TypeCommercial
- TransactionFor Lease
- NeighbourhoodRiverside Light Industrial Park
- Commercial TypeIndustrial
- Building Size11,206 sqft
- InclusionsN/A
- ZoningI-1
- Year Built1992
Listing Agent
- Jeremy Makila - RE/MAX Commercial Properties 403-986-7777
All information displayed is believed to be accurate but is not guaranteed by Central Alberta REALTORS® Association and should be independently verified. No warranties or representations of any kind are made.



















